When Buying or Selling ...
Call Joe Frieders
815-693-4958
Serving Dekalb, LaSalle & Kendall County areas since 1989

Joe has been selling Real Estate at Swanson Real Estate since 1989 and also the Managing Broker at Swanson Realtor for the last several years. In all those years Joe has sold hundred of homes, building lots and land. Learn more
Search All Areas
Thank you for your interest ...
Please enter the area that you are interested in researching below including area, property type and price range. If you need immediate attention call Joe Frieders at 815-693-4958
150 Christensen StreetHinckley, IL 60520




Mortgage Calculator
Monthly Payment (Est.)
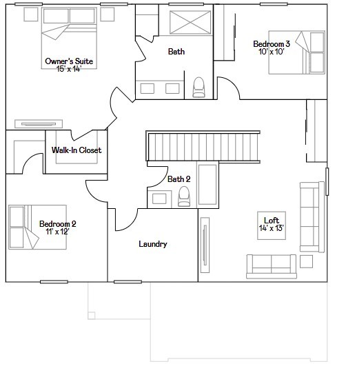
$1,636READY FOR JANUARY DELIVERY!! Homesite #0081 Experience the Meadowlark model, a masterfully designed two-story home combining style and convenience. With three bedrooms, two bathrooms, and a powder room, this home offers the perfect space for modern living. The first floor features a bright, open-concept layout, with a spacious family room, accessible dining area, and an impressive kitchen. The kitchen includes a large island with beautiful countertops, ample cabinetry, stainless steel appliances, and a built-in pantry for added storage. Situated on the second floor, the owner's suite provides a peaceful haven, complete with a walk-in closet and a spa-inspired bathroom with double sinks, a deluxe shower, and high-end finishes. Two additional bedrooms share a full bathroom, and the practicality of a second-floor laundry room enhances the home's livability. The versatile loft and flex space offer endless possibilities for a home office, entertainment area, or extra living space to suit your needs. Throughout the home, thoughtful details like luxury vinyl plank flooring, quartz countertops, LED lighting, and decorative railings enhance both the aesthetic and functionality of every room. *Photos are not this actual home* Exteriors will be Indigo colored vinyl sidings with Huron colored stone. Royal Estates is a brand-new community of single-family homes for sale in Hinckley, IL, offering residents a quiet, scenic setting with easy access to nature, recreation, and enriching experiences. Outdoor lovers will appreciate close proximity to Shabbona Lake State Park, a 105-acre haven for fishing, boating, hiking, and wildlife watching. Its scenic trails and serene landscapes make it an ideal destination for both adventure and relaxation. For even more outdoor enjoyment, the Great Western Trail offers an 18.5-mile path perfect for hiking, biking, or a peaceful walk surrounded by lush greenery and abundant wildlife-a refreshing escape from the everyday. Just a short drive away, Northern Illinois University (NIU) brings a vibrant energy to the region with its cultural events, athletic programs, art galleries, and concerts. As a hub of innovation and education, NIU also offers world-class academics and research opportunities. At Royal Estates, you'll find the perfect blend of quiet small-town charm, access to outdoor recreation, and connection to world-class resources-making it a community where you can truly thrive.
a week ago | Listing updated with changes from the MLS® | |
a week ago | Status changed to Active Under Contract | |
4 weeks ago | Price changed to $358,640 | |
2 months ago | Listing first seen on site |

Based on information submitted to the MLS GRID as of 2025-10-13 08:57 PM UTC. All data is obtained from various sources and may not have been verified by broker or MLS GRID. Supplied Open House Information is subject to change without notice. All information should be independently reviewed and verified for accuracy. Properties may or may not be listed by the office/agent presenting the information.
Last checked: 2025-10-13 08:57 PM UTC
MRED DMCA Copyright Information Copyright © 2025 Midwest Real Estate Data LLC. All rights reserved.

Joe Frieders, Managing Broker
Swanson Real Estate
815-786-9418 Sandwich
630-553-3333 Yorkville
815-693-4958 Direct
Areas Served: Dekalb, Lasalle, Kendall counties Illinois including Big Rock, Earlville, Hinckley, Leland,
Naperville, Newark, Oswego, Plano, Sandwich, Sheridan, Somonauk and Yorkville
Did you know? You can invite friends and family to your search. They can join your search, rate and discuss listings with you.